
人気プラン320
注文住宅5,000棟の中から
特に満足度の高かった間取りを厳選!!
特徴で絞り込む
80プラン見つかりました
-
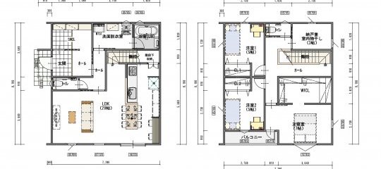
35.19
坪家事動線を徹底的に考え抜いた広々リビングの家
- #ファミリークローゼット
- #和室・畳コーナー
- #パントリー
このプランを見る -
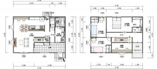
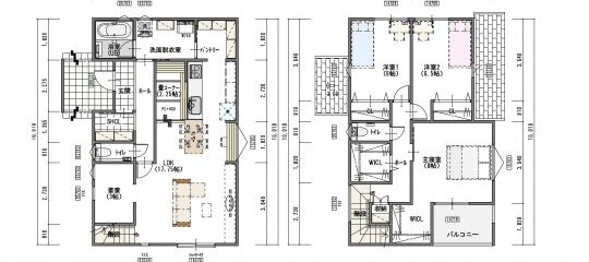
35.06
坪キッチンが生活の中心となる広々20帖リビングの家
- #ファミリークローゼット
- #ランドリールーム
- #パントリー
このプランを見る -
34.32
坪和室の趣と吹き抜けの解放感が生活のゆとりと笑顔を生む家
- #和室・畳コーナー
このプランを見る -
35.06
坪リビングとファミリールームが家族団らんの時間を生む家
- #ファミリークローゼット
- #パントリー
このプランを見る -
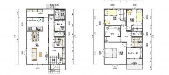
35.57
坪洗濯や家事の時間が楽しくなる生活動線にこだわりのある家
- #ファミリークローゼット
- #ランドリールーム
- #パントリー
- #洗面室・脱衣室別
このプランを見る -
34.06
坪広々玄関の解放感と無駄を徹底的に省いた家事ラクの家
このプランを見る -
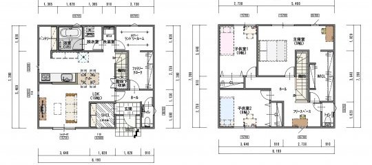
35.56
坪大人気アイランドキッチンを生活の中心とした吹き抜けが解放感をもらたす家
- #ファミリークローゼット
- #ランドリールーム
- #パントリー
- #洗面室・脱衣室別
このプランを見る -
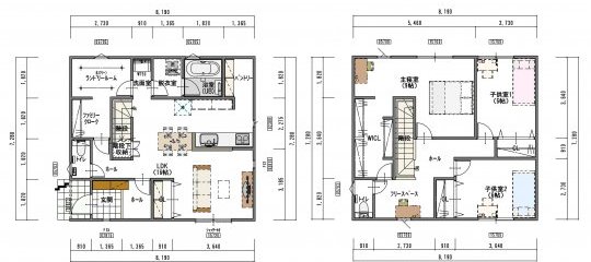
35.57
坪土間収納やファミリークロークが常設された収納たっぷりの家
- #ファミリークローゼット
- #ランドリールーム
- #パントリー
- #洗面室・脱衣室別
このプランを見る -
34.31
坪バルコニーの解放感と大収納クローゼットが魅力的な家
- #ファミリークローゼット
- #ランドリールーム
- #パントリー
このプランを見る -
35.18
坪伝統的な和室とたっぷり大収納でゆとりをもらたす家
- #ファミリークローゼット
- #ランドリールーム
- #和室・畳コーナー
- #洗面室・脱衣室別
このプランを見る

